Pueblo Via
Santa Barbara , CA
Pueblo Via is a total work of architecture. Designed as a cohesive whole, the project orchestrates a site-wide experience defined by spatial carving, tectonic precision, and immersive landscape integration.
The home replaces a previous structure with a series of interlocking concrete volumes and lifted roof planes. The architecture unfolds as a procession of spaces, a sequence shaped by mass subtraction, light modulation, and compositional rigor. The “Canyon of Light,” a linear courtyard that bisects the primary volume, organizes circulation, daylight, and views. Stepped rooflines and angled walls create a dynamic cross section that captures sky and shadow across the day.
The fire-resitant concrete shell is inhabited with interior volumes of Douglas Fir plywood.
/DESIGN PHASE
/TOTAL DESIGN


ARCHITECTURE: TOTAL DESIGN. MAIN HOUSE, ADU, SITE, INTERIOR






Earth ADU
Santa Barbara , CA
In order to maintain a clear view out to the trees from the original main house, the new ADU was buried into the grade one level below. The planted roof and reflecting glass skylight create a seamless visual field from the main house looking out. The sun is collected by the sculptural central courtyard void which divides the living space from the gallery. The subterranean space is designed as a combination of art gallery, guest apartment, music rehearsal space, and fire bunker.
This project continues the California lineage of light and space exploration, via subtraction of mass, carving space to shape light, shadow, and experience.
/DESIGN PHASE
/TECOLOTE CANYON
ARCHITECTURE:ADU + ART SPACE
/TOTAL DESIGN


ARCHITECTURE: TOTAL DESIGN. MAIN HOUSE, ADU, SITE, INTERIOR
![]()
![]()
![]()
![]()




Carpinteria Beach House
Carpinteria, CA
Remodel of 1970s home in a modern coastal vernacular, with new design decisions being made in alignment with the original design intent, updated for the future. Architectural improvments to the interior and site create a greater connection from the home to the legendary surf break. The angled and volumetric interior interventions are anchored on both ends of the site by new redwood decks, steps, and benches, which act to reinforce the project organziation and provide an enhanced continuity between the indoor and outdoor environments.
/UNDER CONSTRUCTION
/ ARCHITECTURE, DRAWINGS, DESIGN

ARCHITECTURE: REMODEL
![]()






AMD ADU
As a conversion of a typical residential 20’x20’ garage, the new ADU is organized in four quadrants, each with a central skylight. The constructed cabinetry elements at the center of the space encourage a natural circular circulation in either direction, maintaing a notion of the larger great room of space while providing the discrete functions of sleeping, kitchen, bath, and living room, all facing out to the North courtyard and mountain views beyond. Pocketing doors and recessed drapery allow for a flexible and open space.
/UNDER CONSTRUCTION
/SANTA BARBARA - LA CUMBRE
ARCHITECTURE: ADU -


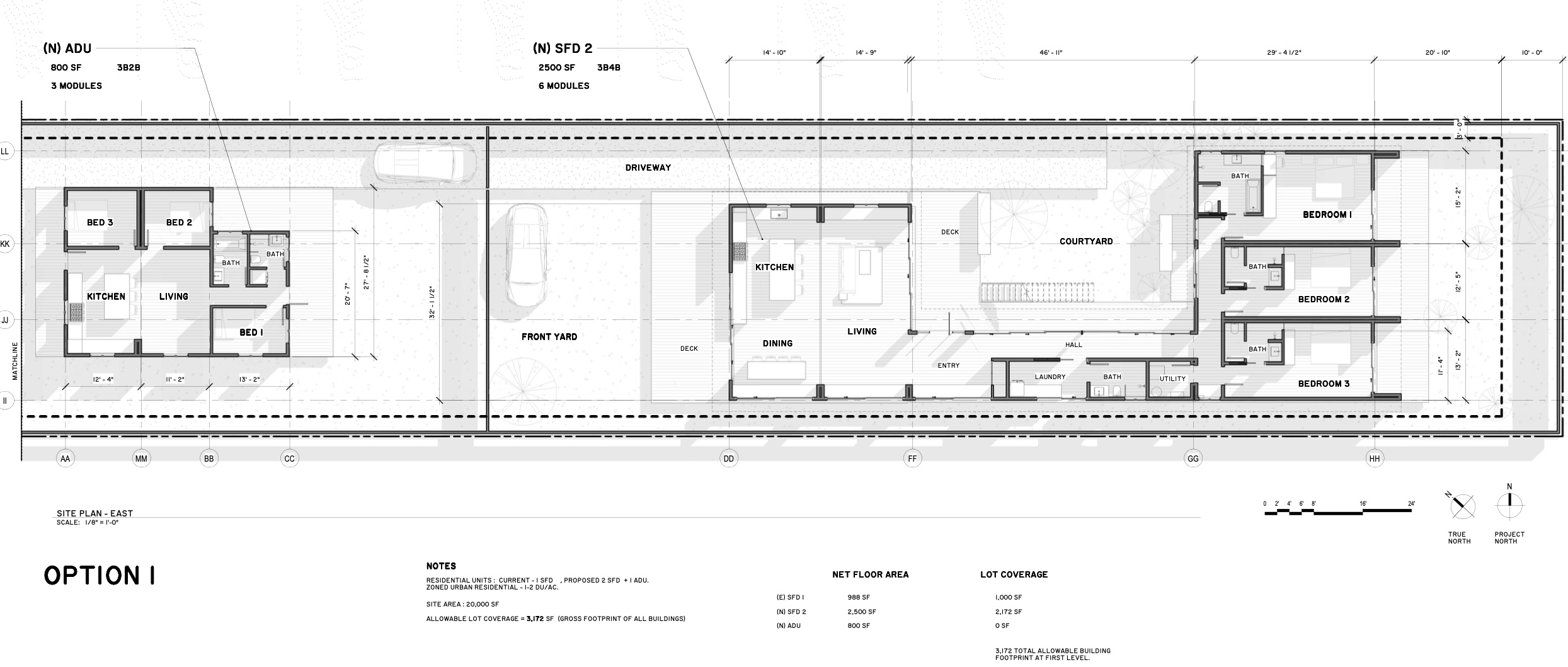
RIO HOUSE
Ventura , CA
NEW HOME + ADU / MODULAR SITE CONCEPTS
/ + REMODEL OF THE EXISTING HOME.
This 50’x 400’ long linear level site opens up new possibiilties of building up the site with volumes of interior and exterior space, with a relation to the original tall-ceilinged home. The first home is remodeled from the interior but maintains its historic character. The new home in the back is being considered for a new modular constuction, with the ADU in between looking to bridge between the previous footprint with the new modular construction. All the spaces work together with fencing and landscaping to create new spatial experiences. within a long slice of California land.
/INTERIOR REMODEL UNDER CONSTRUCTION
/ SITE IN DESIGN PHASE

ARCHITECTURE: INTERIOR REMODEL , SITE PLANNING - MODULAR




